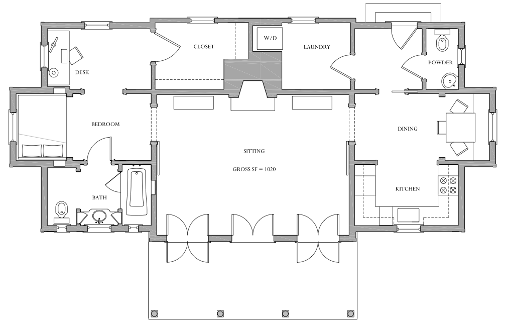
The one thing I would like you to consider is a pass through from master bedroom to the laundry. I would give up the desk to put closet there. That would allow a door to go to laundry. mL LikeLike June 15, 2017 at 9:17 AM Reply
You can contact the architect directly (I only feature their plans) you can reach them at 434 297 3881 LikeLike March 24, 2021 at 11:51 AM
The one thing I would like you to consider is a pass through from master bedroom to the laundry. I would give up the desk to put closet there. That would allow a door to go to laundry. mL
LikeLike
What are the measurements tot the rooms?
LikeLike
You can contact the architect directly (I only feature their plans) you can reach them at 434 297 3881
LikeLike