Madison Spencer. An amazing architect with a wonderful vision. Sarah’s Shack house plan is 1,100 square feet with 1 bedroom and 1 and 1/2 bathrooms.
Can’t you picture this home in Maine? Or anywhere for that matter. It reminds me of a small version of a cottage we rented one year in Port Clyde, Maine. It was unbelievable. This plan is so functional. The exterior I just love!
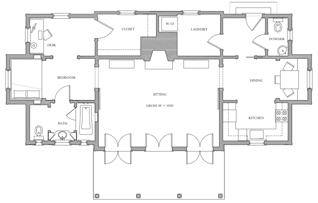
You walk into this plan from the wonderful front porch. The sitting room takes up a good part of the house, with a wonderful door and two French doors opening to the porch. Can you imagine? How perfect when entertaining! The Bedroom is compact, if you didn’t need the Desk area you could also make the bedroom a little larger to position a bed to make entry/exit from the bed easy for two people. I happen to adore the desk area myself. I find myself also liking my desk area to be near where we are living, so perhaps in front of one of the French doors would be nice, especially if you had a great view!
Built-ins in a bedroom are fabulous. The cottage we rented one year had just that, it was so convenient!
Read a bit about Madison Spencer… Be sure to check out Madison’s different projects. I am beyond impressed! Beautiful just doesn’t begin to describe!
Madison Spencer is an architect based in Charlottesville Virginia. He attended the University of Virginia in its heyday when the School of Architecture was led by Jaque Robertson and studied under Leon Krier, Demetri Porphyrios and Bill Westfall. His work takes him from Maine to the Caribbean and is of all scales. Of late he has devoted much time to the study of folly architecture – those more whimsical garden structures that fall somewhere between little house and hermit’s grottoe – on which he has lectured at the Sotheby’s Institute and the American Georgian Society.
For you down-easters, await the Temple of the Winds tower he is designing for an estate on Little Deer Isle drawings of which he will reveal soon!
All images via Madison Spencer, used with permission…
Images are not for construction or reproduction, they are property of the architect.
Catch you back here tomorrow!


This is so special, I want to downsize….yet lots of places to go..delightful. Lv ma
LikeLike
love this plan!
LikeLiked by 1 person
Brilliant, isn’t it?
LikeLike