
Allison Ramsey Architects always has fabulous house plans to choose from. They have homes of all shapes and sizes with all sorts of layouts, if you’re in the market to build a new house I would not hesitate contacting these people. They truly know what they’re doing. This is the INLET RETREAT plan (C0037). This house is 2210 square feet with 3 bedrooms and 3 bathrooms. It has been built with all kinds of different looks on the outside. From the cottage look to a mountain cabin look, each is unique and inspiring!

This is a nice open plan with a master bedroom downstairs, as well as a guest bedroom/bathroom. I like the living room in the back of the house, it seems more private that way. Personally I would make the den an office/reading room. Matter-of-fact, since we don’t have guests that often, I think I might make the den the guest room and make the front bedroom and office/reading room. I would make it nice and cozy… Oh, yeah, that sounds delightful! I could work on my blog, then curl up with a good book as light streams in through the window… This is what you call gracious living…

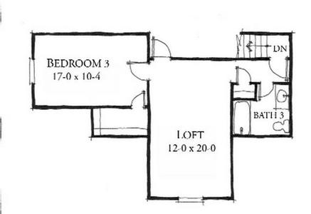
The upstairs is the third bedroom/bathroom as well as loft space. I might even make this loft space and storage (stick the dreadmill, oh, I mean treadmill up there… where you can’t see it). Maybe build some nice storage space around the perimeter where there aren’t windows. Storage space is always a good thing!
See images of actual INLET RETREAT homes that were built, it really helps you get an idea of what it will look like, and see how differently the house can look depending upon your personal style!
Contact the architects at info@allisonramseyarchitect.com or 843.986.0559 to verify square footage, house dimensions and additional information or to purchase a set of plans. Their house plans show how their attention to detail time after time makes them a great architect to choose!
All images via AllisonRamseyArchitect.com
F L A S H B A C K
O N E Y E A R A G O… Featured artist… Louisa McElwain!
T W O Y E A R S A G O… Artist to watch… Karen Hollingsworth!
