
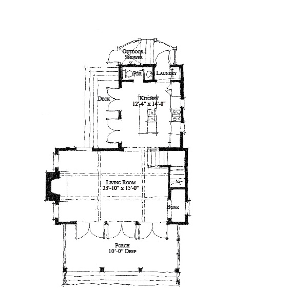
The last house plan I featured was an overwhelming hit (the Holiday House/Port Royal Coastal Cottage) – I am looking at plans like crazy, but I keep going back to Allison Ramsey! THE RIVER HOUSE – This is a fabulous one bedroom house that has got the neatest features. I would pair this house with one of the Allison Ramsey outbuildings… part garage and part guest suite. These outbuildings are a post all in themselves, but I just thought I would mention it… Imagine this sweet plan on situated on a river. You have a wonderful porch, useful living space that is as gorgeous as it is functional, then you have the master bedroom/bath upstairs.

One magical element… the BUNK… when you look at the link with the photos you’ll see how utterly cool this is. What a magical place to hang out and read… whoa!

I would have a built in headboard that doesn’t go above the windows, maybe with a drawer or two underneath for storage. I would love to have the washing machine/dryer where the bathtub is (upstairs) and maybe fit a small bathroom with shower downstairs (maybe where the laundry is), just in case one day you aren’t able to go up the stairs, you can still take a shower! I love having a master down, but this plan could make me change my mind!
Click to see images of a real “River House” by Allison Ramsey Architects (these images help so much to envision what this space could look like!)
Hey… does this house look familiar? Yep, it’s the River House on the cover of Garden and Gun magazine (image via Garden and Gun Facebook page) – and let me tell you, this is one classy magazine… click here to subscribe!

Are you currently building a house? Have you run across some wonderful house plans (that actually include the plans)? Let me know about it!
F L A S H B A C K
O n e Y e a r A g o: Featured Artist… Aaron Schuerr!
T w o Y e a r s A g o: Artist to watch… Alison Hill!
T h r e e Y e a r s A g o: “Aha” Moment – Island Inn, Monhegan, Maine
Catch you back here tomorrow!
Images via ALLISONRAMSEYARCHITECT.COM

love this plan – great size!
LikeLike
amazing how they manage to come up with a great plan time after time, love it!
LikeLike