
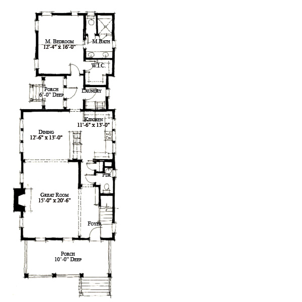
This is the Ribaut Square (C0557) house plan by Allison Ramsey Architects. This plan is 2155 square feet with 3 bedrooms and 3 bathrooms. I haven’t featured a plan like this, because these types of plans don’t normally catch my attention, but… this one did. It is masterfully laid out, check it out…

A 10′ deep porch. Nice! So very nice! Master bedroom and bath separate from the rest of the house… very nice! Laundry in close proximity to master… a big plus! Then you have the living space, open, but not too open… So nice!

Two bedrooms upstairs, (perfect for guests!), with walk in closets, bathrooms and a sitting area, not to mention that fabulous porch! Nice to give guests their own space! Caution: with this plan, guests may never leave, ha ha… I wouldn’t want to!
I really like this plan, and am so happy I stumbled upon it!
All images via AllisonRamseyArchitect.com, used with permission…
Catch you back here tomorrow!
