
Isn’t this a sharp house? The exterior is exquisite. I love that wonderful porch, especially with no spindles! The doors and windows are fabulous. Those small windows at the top just add so much!
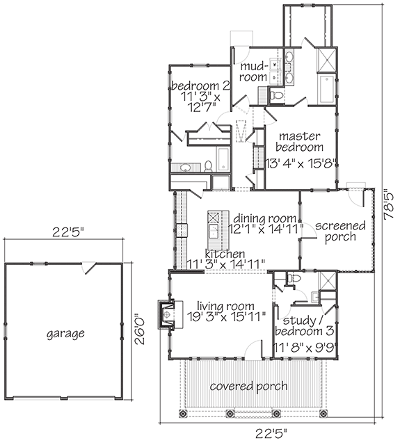
This is the Sparta (SL1810) house plan. It has 1,824 square feet with 3 bedrooms and 3 bathrooms. This plan was designed by Lew Oliver and is available through Southern Living!

I really like the layout of this plan. Personally, I would make that front bedroom a guest room with it’s private bath, and keep the master bedroom in the back, and use “bedroom 2” as a study, so it’s tucked away in a quiet place which also gives your guests their privacy! I would love to hear from any of you who have a closet off of your bathroom… I wonder if it would get humid in the closet that way? Or is it fine? Dining, kitchen, living all open which I love! That is one sweet screened porch on the side as well! What a treat!
Catch you back here tomorrow!
I love this plan, too! I’m with you on the closet in the bathroom thing. Many moons ago, when I was a young newlywed, my husband and I rented an apartment in the city of Panama, Panama. He was stationed at Ft. Clayton at the time. Our apartment there was very small and the closet was in the bathroom. It was not a good place for a clothes closet. (All that was in another life…..)
If I was going to build this house, I would have to reconfigure the master BR area so the closet entrance was not through the bathroom.
I would move the mud room to the side of the house and make a breezeway type connection between the garage and the newly located mud room that would now be just behind the pantry in the kitchen. Hope that makes sense. I can picture it as being perfect in my mind.
LikeLiked by 1 person
I want to see the pics of the inside of this, clearly already, built home. Any exist for #404?
LikeLiked by 1 person
Contact Southern Living or Lew Oliver, the architect.
LikeLike
Our first home had the closet off the bathroom and we loved it. My husband has always had to leave the house before I am up. This way he could go into the bathroom, shower, shave and dress before waking me for a goodbye kiss. If we ever get to build our dream home it will have this feature.
Even in Alabama we never had a problem with humidity in the closet.
LikeLiked by 1 person
Thank you for that wonderful comment Nicki! I’ve always wondered about humidity when the closet is so close to the shower. Good to know!
LikeLike
Our current home has a walk-in closet accessed through the master bath and we love it. If my husband and I have to be up at different times it allows the early riser to shower and get dressed without disturbing the other. (We did a bunch of built-in shelves and drawers in the closet so we literally do not need dressers for day to day clothing). We live in Connecticut so we probably don’t have the humidity issues of more Southern locales (but we do run the fan when showering and have never had a moisture issue from that.. )
LikeLiked by 1 person
Thanks Diane! The way you describe sounds very convenient! Love the idea of built in shelves/drawers!! Thanks for commenting!
LikeLike
I have had two homes with closets off the master bath. Love it! I live in Hotlanta and humidity is not a problem at all inside the house. I guess the air conditioning keeps things dry.
LikeLiked by 1 person
Thank you Penny, this is so good to know. I am seeing closets off the master bath more and more! Happy New Year!
LikeLike
I have this house. Just slightly design inside. It is my favorite home.
LikeLiked by 1 person
Wonderful plan! Congratulations 🎊!
LikeLike
Would you be willing to share pictures?
LikeLike
I don’t have any images Farida – I feature house plans, they are not mine, I just enjoy house plans. Congratulations on such a beautiful home!
LikeLike
Do you have any pictures to share of the inside layout?
jdavis1793@gmail
LikeLike
Maybe contact Southern Living or Lew Oliver to see if they have interior images? Would love to see interior images.
LikeLike
Do you have pictures of the interior of this beautiful home? (Sparta II)
LikeLiked by 1 person
Sparta (SL 1810) by Lew Oliver – a Southern Living plan. Southern Living is excellent to deal with, after a quick search of trying to find a Sparta home with interior images I haven’t run across anything yet. I would contact Southern Living – they are full of information. I hope that helps a bit.
TALK to a SPECIALIST!
or (888) 846-5131
LikeLike