
House plan 552-2 a Signature Plan by Arch L.A.B from Houseplans.com. I know… not everyone likes a modern house plan, but bear with me…
I love the clean lines and uncluttered feel to this plan. This house is very practical as well, and just look at that fabulous carport! No tree sap to keep your car windows from opening, that’s for sure! But wait until you see the back of the house! I imagine this house maybe situated on a lot with a water view, or desert view, or some kind of view other than other houses…

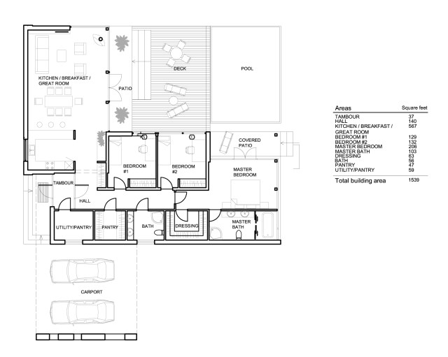
The plan is quite nice. You walk in and have the kitchen, breakfast, and great room to your left. If you come in through the carport, you come through a utility room/pantry. The master bedroom/bathroom is at one end, and includes a covered patio with a poolside view. Nice! Bedroom 1 I would use as a reading room and bedroom 2 for guests. All of this living space tucked into 1,539 square feet!

My favorite view! I love those windows! Nice little covered patio outside the bedroom and off the living area. Very nice!
All images via Houseplans.com, used with permission…
Catch you back here tomorrow!

love this plan!
LikeLike
Yay! I think it’s a great plan, especially if you don’t have a great view from the front but you do from the back!
LikeLike