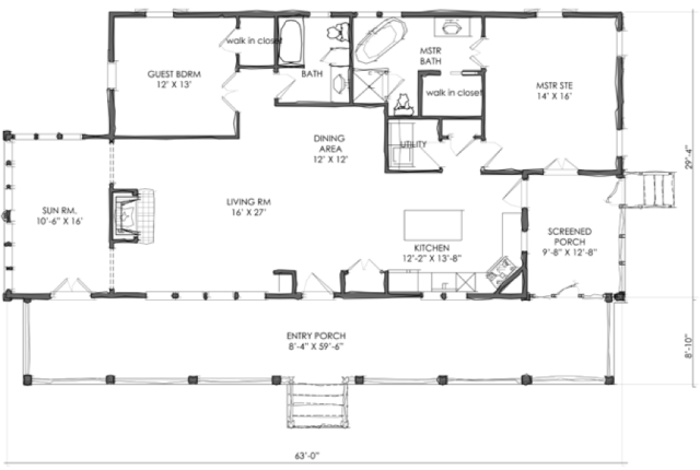
This is the TNH SC 41A house plan by Moser Design Group. This is a cool, smaller plan that has a very different layout. This is a one story home with 1,592 square feet, 2 bedrooms and 2 bathrooms. The ceilings are 10′ which is quite impressive. The porch. Ahhh, the porch. The epitome of low country living. The smaller window on the right is the kitchen window. If there was a way, I would make the windows the length of the counter and have a pantry somewhere/anywhere. That’s just a personal preference.
A huge plus with this plan are the porches. They add so much! The porch across the front, the screened porch on the right side and a sun room on the left side. I believe they’ve covered it all!
Wonderful plan. KITCHEN ON THE FRONT. I love the idea of the kitchen window looking out where things are happening! I swear you could almost 86 the dishwasher, since it could be so entertaining to look out while washing dishes!
The only changes that we would probably make is to not have a bathtub in the Master Bath. Maybe if the Master Bath could be reconfigured to hold a washing machine/dryer so that I could make the Utility room a pantry. Bottom line is that this is a wonderful plan with no changes being made. It’s a great livable space both on the inside and outside!
Catch you back here tomorrow!



like this plan!
LikeLiked by 1 person
ME TOO! Love the porches!
LikeLike