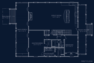
Kemper Residence by Lake & Land Studio Main Floor On November 17, 2017November 17, 2017 By Barbara Stroud