
This is the Senepol house plan – a Perch Plan by Tim Brown Architecture. This plan is 3,523 square feet with 4 bedrooms and 3.5 bathrooms. When you go to Tim Brown Architecture’s website, these plans are located under PERCH PLANS – there are two choices, Modern Farmhouse and Maison Provincial – the Senepol plan is in the Modern Farmhouse Collection.
I love the lines of this plan, the cuts in the roof, the windows – pretty much everything. It’s got such style!

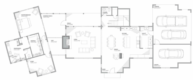
The main living space has been well thought out. One room flows into the next so nicely. When you enter this home you see the dining room, which is open to the kitchen – who doesn’t love that, right? Off to the side, near the garage is a utility room, with the washer and dryer. Past the dining area is a powder room and stairs leading to the next floor. The next section is the living room (which is still open to the dining/kitchen space) – which has a wonderful fireplace as well as a back porch and many windows. The windows seal the deal for me! On the far side of the home is the master bedroom, bath, study – it’s a wonderful getaway space – separated by the living areas by a hallway and a screened porch. Pretty spectacular, isn’t it? One other thing to note… there is a one car garage and a car port for two cars. I love that concept far better than one big garage. Good design lasts forever!
Be sure to click on the orange links above and see images of the interior (and exterior) spaces. Jaw. Dropping.

Upstairs there are three bedrooms, two bathrooms and a landing space that is a nice getaway space – great for a sitting area, library or gallery!
Also, a reminder, you have the option when you go to purchase the plan to include any custom modifications!
Check out Perch Plans social media for more images…
Facebook | Instagram
Catch you back here tomorrow!

Wow!!!!
LikeLiked by 1 person
Agree!!
LikeLike