
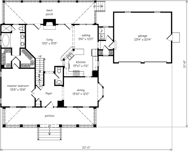
This plan has charm written all over it, doesn’t it? The house (plan by Southern Living House Plans) is 2,089 heated square feet. This home has 3 bedroom and 2.5 bathrooms.

One thing that I love right away is the breezeway/mudroom/laundry room that connects the garage to the house. What a efficient use of space! This is a great plan because there are so many ways to use it based on how you live… For Fred and I, a dining room really isn’t a big deal, so I would make that an office area, with a place for Charlie to look out the window, I see the perfect spot, don’t you? I would have a cushion made for the bay window, hee hee… that would be his new spot! Perfect! Nice kitchen, with a place to eat that isn’t so large… once again, perfect! Nice porches back and front… I’ll take it!

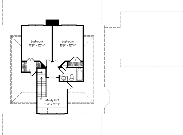
I like that the upstairs is kept simple, 2 bedroom, one bathroom and a study loft AKA treadmill room or separate “living room” for kids or spouses who watch bad TV (hee), or… storage… once again… OPTIONS!
What do you think?
F L A S H B A C K !
O n e Y e a r A g o: Artist: Susan Graeber!
T w o Y e a r s A g o: Applegate Organic Hotdogs
T h r e e Y e a r s A g o: Lee Greenwood: God Bless the USA
I want a breezeway/mud/laundry room! Love the dormer.
LikeLike
ME TOO Jennifer!! That would be a dream! I think I would make the dormer a little bigger (I mean, while I’m dreaming, I might as well!) and put those little windows that open out to add charm… OK… I’m ready to move! hee hee…
LikeLike