This is the Sawyer Farmhouse by Yankee Barn Homes. Impressive, isn’t it? It looks so stately, especially situated near a wooded area. Absolutely beautiful!
This home is 3,099 square feet with 3 bedrooms and 3.5 bathrooms. I think the color choice on this is especially nice. If you haven’t checked out Yankee Barn Homes before, you may want to take a peek!
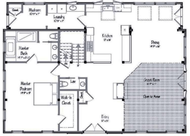
First Floor
I do like a Master Bedroom downstairs. It’s nice that there is a dedicated mudroom area, so necessary in many parts of the country, especially colder climates! Love the open Great Room/Kitchen/Dining and ample Entry. I wonder if the powder room could be tucked underneath the stairway. I’ve seen it done, and they are tiny rooms, but sufficient. Otherwise where it’s at is just fine! As you can see there is a part of the Great Room that is open to above. That is the one thing I might change (for us).
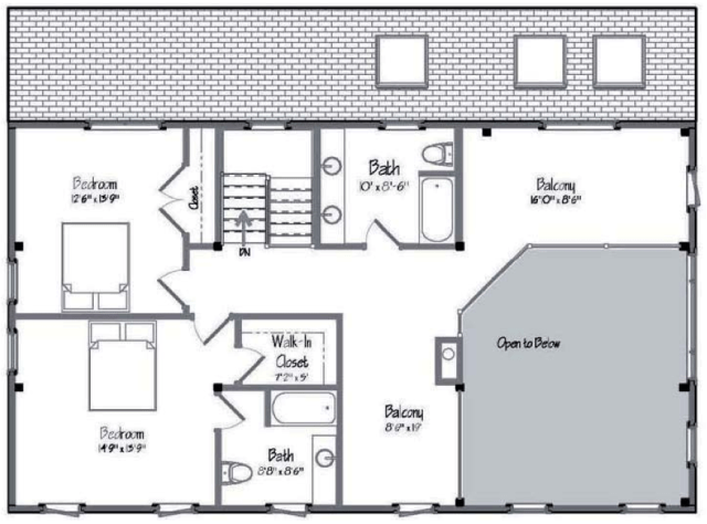
Second Floor
See the Balcony area on this floor towards the back of the house (upper right of image, next to the part that is “Open to Below”)? I think I would have the room open to below all the way across and just not use that one balcony? I think. Be sure to check out the images on their website!
It’s very nice that there are two bedrooms, two bathrooms and a balcony space that can be used as a sitting area! What a beautiful home!
Read more about the Yankee Barn Homes from their FAQs page!
All images via YankeeBarnHomes.com, used with permission…
Images are not for construction or reproduction, they are property of the architectural firm.
Catch you back here tomorrow!



