I love scrolling through the house plans on Allison Ramsey’s website. (Allison Ramsey is a company name and not a person, in case you’re wondering who Allison Ramsey is, hehe). If you visit Beaufort, SC (as well as just about anywhere in the south) you will see so many Allison Ramsey homes. You may not KNOW they’re one of theirs because their homes seem to blend so well with the existing architecture which is classic and stunning.
This is the Oak Island Retreat house plan by Allison Ramsey architects (18386). This plan is 2,700 square feet with 3 bedrooms and 2+ bathrooms – Let’s take a peek…
You enter into this home via the gorgeous porch into a foyer. To your left is a den (or library, office, etc.) – and your staircase is on the right. This opens into the living room which is open to the kitchen (so nice!) – the kitchen is open to the dining room which is open to the back porch. A lot of open space for sure! There is a side entrance on the left side of the house which enters into a mud room with a powder room tucked around the corner near the kitchen. On the right side of this plan is the master suite. Bedroom in the back of the house, then master bath and walk in closet on the front of the house. Let’s venture upstairs…
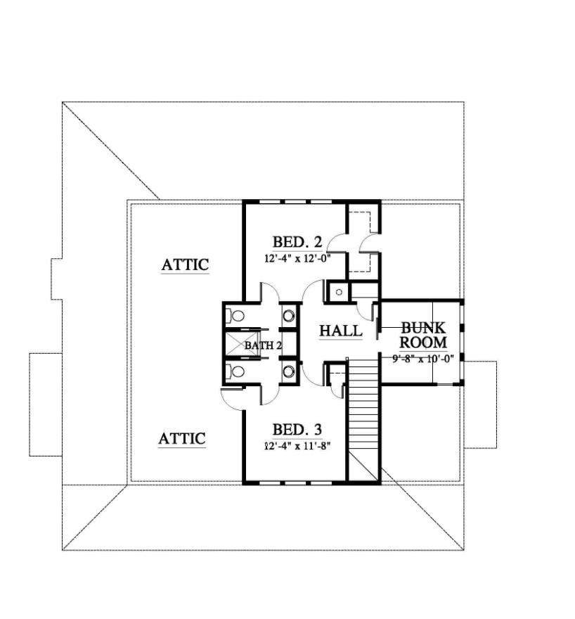
Upstairs you’ll find two additional bedrooms and another bathroom which is quite unique. Each bedroom has its own toilet and sink and a (Jack and Jill type) shared shower area. That way everyone can be getting ready! There is also a bunk room down the hall which is perfect for sleepovers! Also note the great attic space. Who doesn’t need that, right?
As always, if you see something you would like changed to fit your needs, be sure to contact Allison Ramsey – they’ll turn your dream into a reality!
Allison Ramsey Architects
Website | Facebook | Instagram | This Plan
🏠I work with architects/designers from all over. If you’re interested in one of their plans, please let them know that you saw it here on artfoodhome.com!
Until next time…


