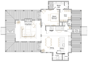
Sanctuary Cove House Plan by Flatfish Island Designs MAIN On February 19, 2020February 19, 2020 By Barbara Stroud