This is the Sanctuary Cove Home Plan by Flatfish Island Designs. This plan is 2,108 square feet with 2 bedrooms and 2.5 bathrooms. This is the perfect plan if you’re situated on a lot with a stunning view! How wonderful to be able to take in the fabulous view from everywhere! There is a wonderful front porch and a large, covered porch that wraps around the house. If it were me, I would screen in the back (or a portion thereof) to let the breeze flow through into the living room (minus the bugs)!

The main floor is stunning, with the master bedroom, bath, and closet off to one side. On the opposite side of this house is the powder room, entry, kitchen, dining space. The living room is situated off the back of this plan with site lines to the dining/kitchen. There is so much room to spread out and everyone can have their own space. #winwin The kitchen has a wonderful pantry – Oh, what I wouldn’t give for that!
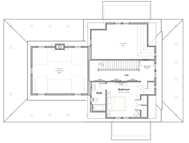
Note that the living room is open to the floor above. That high ceiling height only adds to the feel of the room – making it grander!

Upstairs there is one guest suite with closet and bathroom. It’s nice when guests have their own space. This is yet another beautiful plan by Flatfish Island Designs. Read more about Flatfish below…
Flatfish Island Designs
Website | Facebook | Instagram | FAQ
Catch you back here tomorrow!
All images via FlatfishIslandDesigns.com, used with permission…
Images are not for construction or reproduction, they are property of the design firm.

