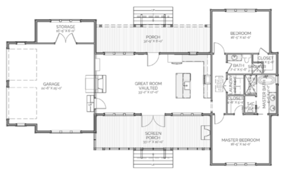
Greenville Residence house plan by Lake and Land Studio On February 3, 2019February 3, 2019 By Barbara Stroud