
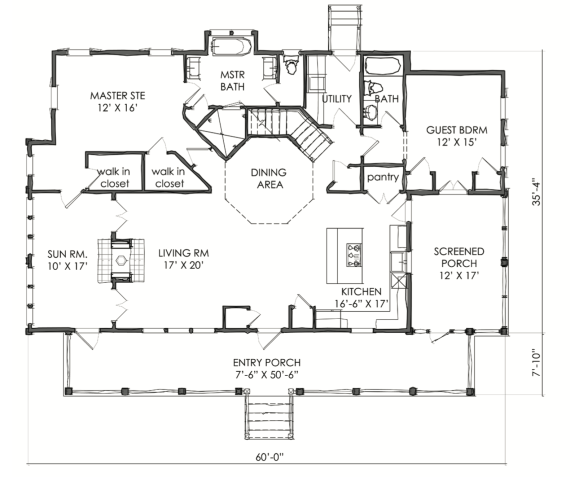
This is the TNH LC 39A plan by Moser Design Group. I love the long front porch (50+ feet!) and the wonderful screened porch tucked on the right side of the house. You can also gain entry to the house (guest bedroom and kitchen) off the screened porch. On the left side of the house is a sunroom. You may just see a door on the far left, but there is a bank of windows on the side of the house that brings light into a sunroom. This plan has such curb appeal!!
The master suite is located in the back left of the house and the guest suite is in the back right side with a utility room and bathroom separating the two. The kitchen has a wonderful pantry (YAY!) and the dining room was generously fit to blend in with the shape of the staircase. This is a nice open concept plan that allows a site line through to the rooms that are used most often.
Upstairs is another bedroom, bunk room and studio with plenty of storage – woohoo for storage space! There is also a bathroom that hugs the shape of the staircase. Utilizing every square inch of space!
Moser Design Group
Website | Facebook | Read about Moser Design Group
Catch you back here tomorrow!
All images via MoserDesignGroup.com, used with permission…
Images are not for construction or reproduction, they are property of the design firm.


