Skip to content
ARTFOODHOME.COM
by barbara stroud
Menu
Search
Home
About Me
☎️CONTACT me
✨Feature Requests✨
Search for:
Search
TNH LC 39A by Moser Design Group Main
On
April 30, 2019
By
Barbara Stroud
Post navigation
Previous
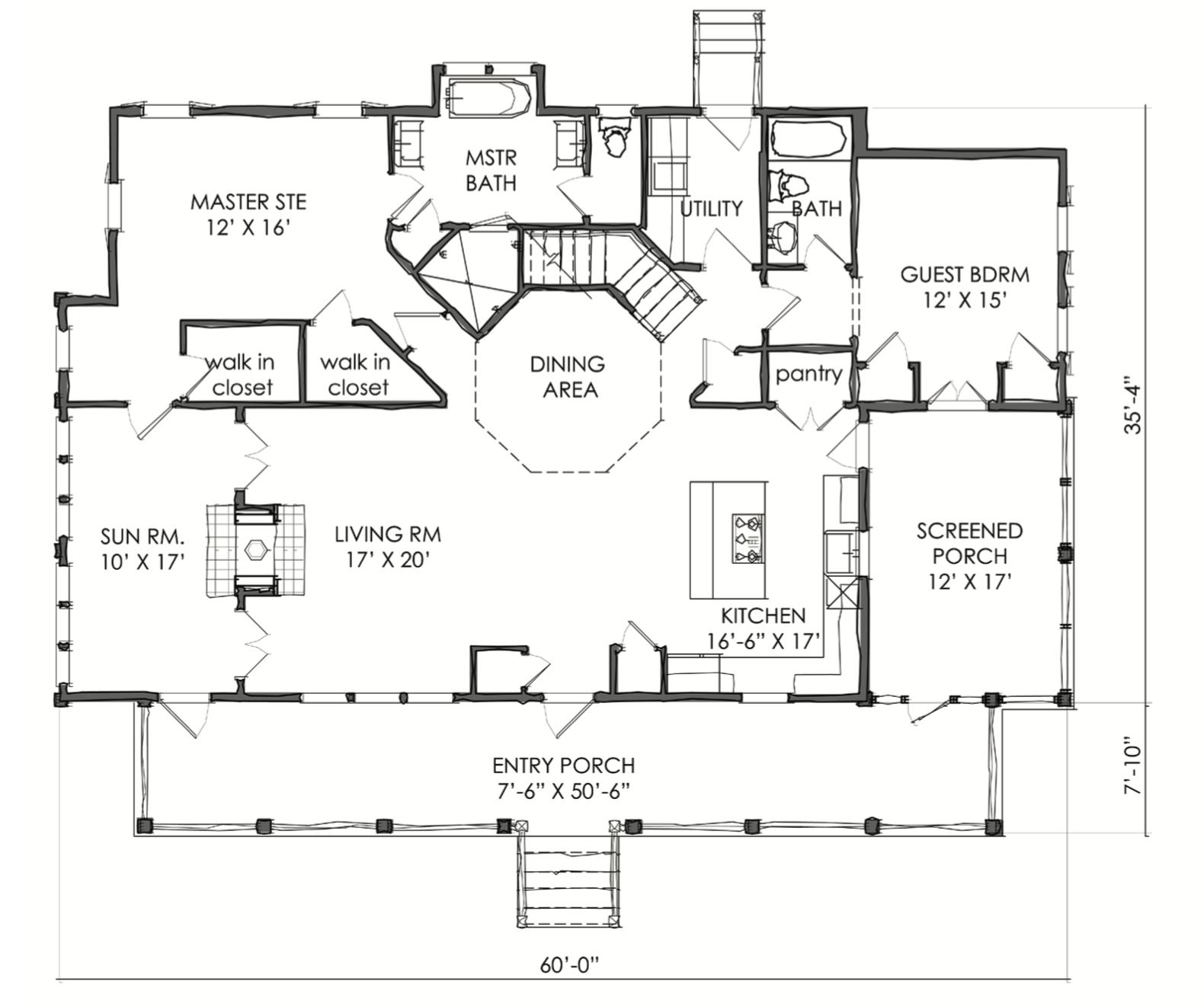
The TNH LC 39A House Plan by Moser Design Group!
Make my day and leave a (public) comment!
Cancel reply
Δ
Advertisements
Advertisements
Advertisements
Privacy & Cookies: This site uses cookies. By continuing to use this website, you agree to their use.
To find out more, including how to control cookies, see here:
Cookie Policy
Comment
Subscribe
Subscribed
ARTFOODHOME.COM
Join 933 other subscribers
Sign me up
Already have a WordPress.com account?
Log in now.
ARTFOODHOME.COM
Subscribe
Subscribed
Sign up
Log in
Copy shortlink
Report this content
View post in Reader
Manage subscriptions
Collapse this bar
Loading Comments...
Write a Comment...
Email (Required)
Name (Required)
Website