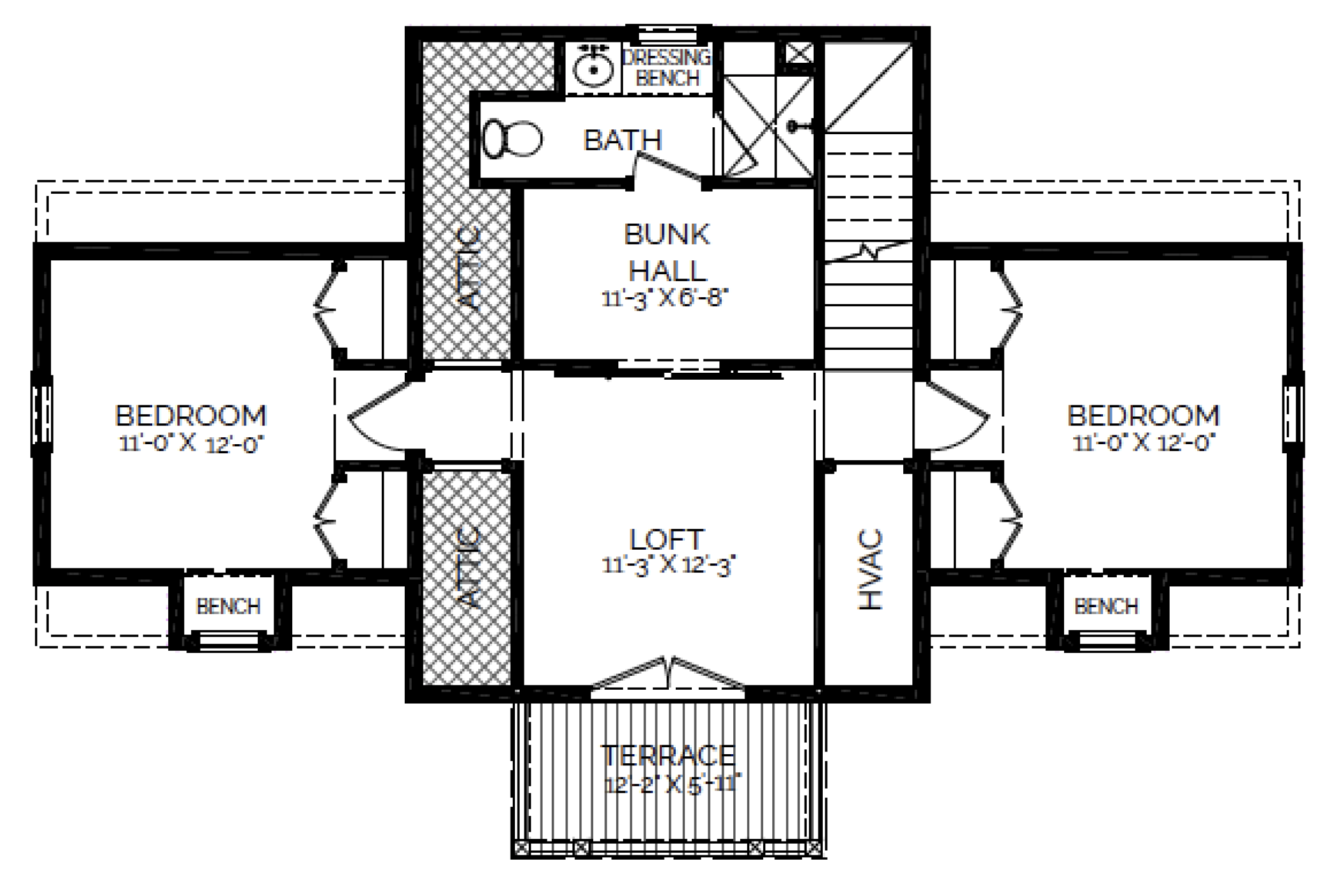
Evergreen Cottage House Plan SL 2003 for SL UP On September 24, 2019September 24, 2019 By Barbara Stroud