
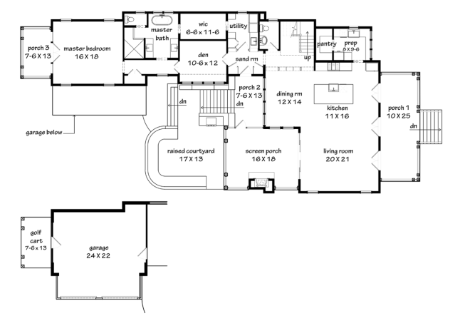
This is the TNH LC 52 plan by Moser Design Group. Striking, isn’t it? I love tall the windows and cuts to the roofline. This plan is 2,916 square feet with 3 bedrooms and 3.5 bathrooms. It also includes a Master Bedroom down, which is always nice! If this plan looks a little familiar to you, it was the 2018 Coastal Living Idea House (Habersham) – click HERE to check out the blog post from Moser Design Group to see more images of the interior! STUNNING!

A well thought out plan with plenty of space for everyone! A great open kitchen/living/dining plan with access to a porch (love this!) – a pantry and prep area off the kitchen. *My dream come true!* Porches are all over this plan and they’re so nice! The master suite tucked in a corner, complete with everything you could possibly need, including a den located just down the hallway!

Fabulous layout upstairs with closets and attic space. I think I would use the 3rd bedroom as an office and maybe eliminate the gallery giving myself more room. I love the windows in this bedroom (2 on the front and 2 on the side) – wonderful natural light! If I didn’t need an office space and had people to occupy these rooms they are perfect as is! I love the gallery space – perfect as a smaller get together room for those upstairs!
When you take the time to really look at this plan you see that it has everything and more!
Moser Design Group
Website | Facebook | Who We Are
Catch you back here tomorrow!
All images via MoserDesignGroup.com, used with permission…
Images are not for construction or reproduction, they are property of the design firm.