
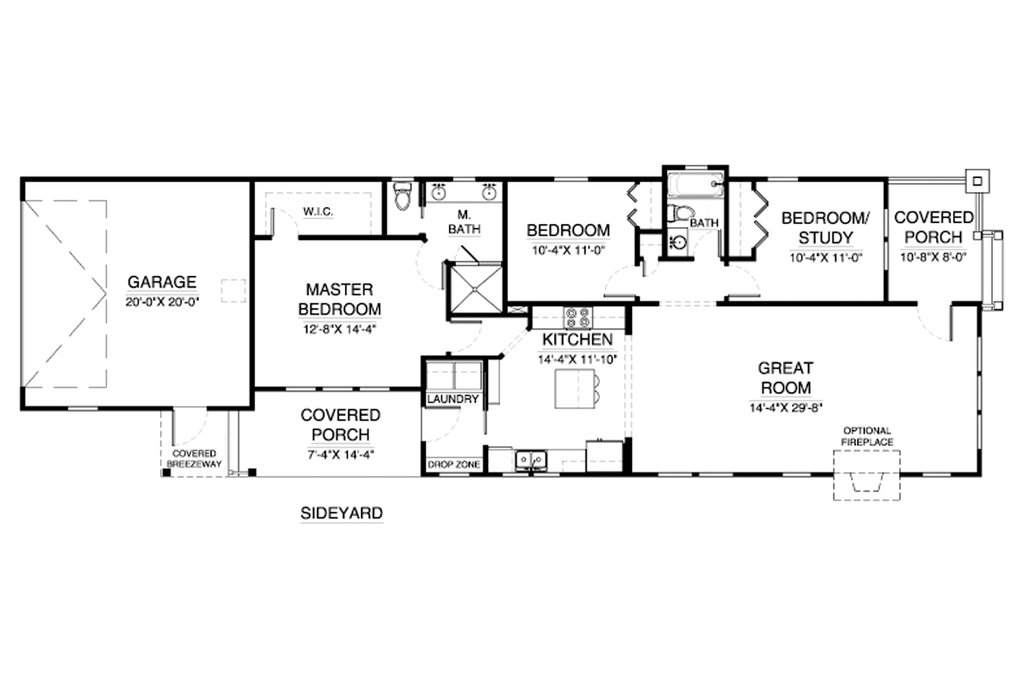
900-7 is the name of this house plan, designed by C3 Studio and available via Houseplans.com! If you don’t need a lot of extra rooms that you won’t use, this is the plan for you! This plan is 1,421 square feet with 3 bedrooms and 2 bathrooms. One bedroom can be used as a study or office area, how perfect is that? I love the sweet character of this home. I think the stone work really makes it! The windows are fabulous too! The downstairs windows (6 over 1) look so nice on this plan!

You walk onto a covered porch, which is so nice when its raining, then into the great room, where you can see through to the kitchen. I love that the kitchen sink has a window. Mandatory in my eyes ;) Washing dishes isn’t so bad when you have something to look at! The two front bedrooms/office/study spaces share a bathroom, then beyond the kitchen is the laundry, and onto the master bedroom, bathroom and closet.
There is another covered porch off the back of the house that leads to the garage. Nice, hmmmm? Another great plan to keep in mind when the time comes!
All images via Housplans.com – check them out!
Catch you back here tomorrow!
love this
jennifer lea dulin po box 313 lakeville, CT. 06039 sent from my phone, excuse brevity…
~ keep some room in your heart for the unimaginable~
mary oliver
LikeLike
Me too Jenn!! It’s just perfect!
LikeLike
nice plan!
LikeLike