Stunning, right? I would love to be living in this house right now on the coast of Maine, hee hee. This is house plan 500-3, a Signature Plan by Robert Swinburne, available from Houseplans.com. This plan is 1,372 square feet with 3 bedrooms and 1.5 bathrooms. What’s nice about this plan is that it’s customizable. Need a bedroom downstairs? No worries, they can figure it out! I love that!
Look at those small windows on the second floor, I love the character they add!
The combination of screened porch and unscreened porch makes this plan hard to pass up. There is so much living to be done in this wonderful space!
Downstairs you will find Kitchen/Dining space and a Living Space as well as a half Bathroom. Perfect if you don’t need a lot of space.
If I could modify, I would add closets (if using this for a regular home, if used for a vacation home, you could get by with no closets) and I would expand upon the half bath and add a shower. What would you do? Anything? Maybe in time add a Master Bedroom/Bathroom downstairs.
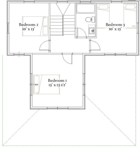
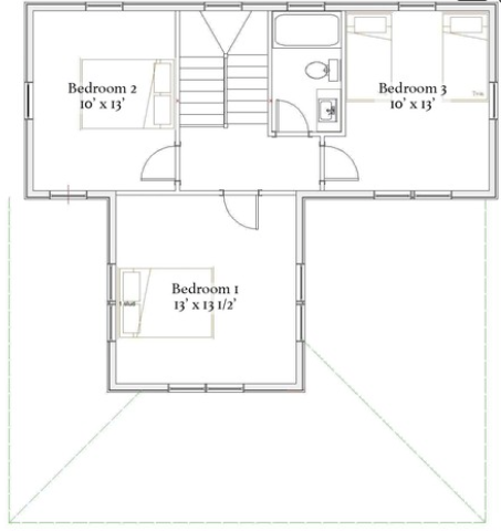
Three bedrooms and a full bath upstairs. I’m not seeing a laundry room, which would really be nice, so for the two of us, I think I would make Bedroom 2 a Master Bath, complete with washer and dryer (which is really convenient, that’s how our bathroom is now) – OK, so that was Fred’s idea, gotta give credit where credit is due! So I would close off the door to the hallway into Bedroom 2 and put the door going from Bedroom 1 into Bedroom 2. What would you do, if anything? This is one sharp plan, wouldn’t you agree?
All images via Houseplans.com, used with permission…
Catch you back here tomorrow!



would love to build this home in Maine (port clyde)!
LikeLiked by 1 person