House Plan 536-2. This is a wonderful small home plan by architect Bruce Tolar for Houseplans.com. I love the front porch and the look of this house! A house built up high is especially appealing after all the flooding we’ve been experiencing. I think this house has a classic low country coastal vibe – very nice!
When you go to Houseplans.com check out this plan and all the photos, you’ll see some images where it sits on a pier and beam type foundation. Then you have the option to enclose the lower portion or have it exposed, using it as a carport. It depends where you are building and what your needs are. The stock plan shows it open, but the photo above (sent to Houseplans.com from a homeowner) shows that they utilized the space for an enclosed garage. It’s nice to have a great plan with so many options!
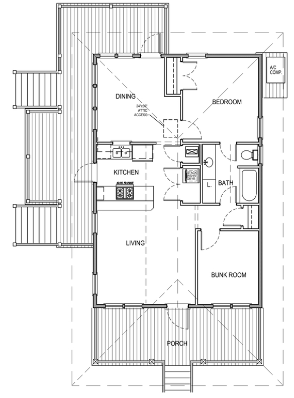
It seems I usually select a house plan with a porch. Front, back or side. I love to be able to sit outside and take advantage of outdoor living spaces. This compact home has a bedroom and a bunk room, which is perfect for either bunk beds or even a sleeper sofa, if it’s only going to be used on occasion. There is a sweet, efficient, galley kitchen, as well as a dining room. Everything you need to call this place home!
You can scroll down to the end of this link to read more about the architect, Bruce B. Tolar!
All images via Houseplans.com, used with permission…
Images are not for construction or reproduction, they are property of the architectural firm.
Catch you back here tomorrow!


My favorite plan!!! I have carries a photo of this house on my phone for years. Hope to build this on my property in the SC Lowcountry very soon!
LikeLiked by 1 person
It must be so exciting, especially waiting for it! So worth the wait, woohoo!
LikeLike