I love the porch on this home as well as the side screened porch. The perfect spot to hang out on a nice day! The windows are a great pick making this home fit in if it were built in an older subdivision. I think they fit this home nicely. #windowsareimportant Great lines to this home.
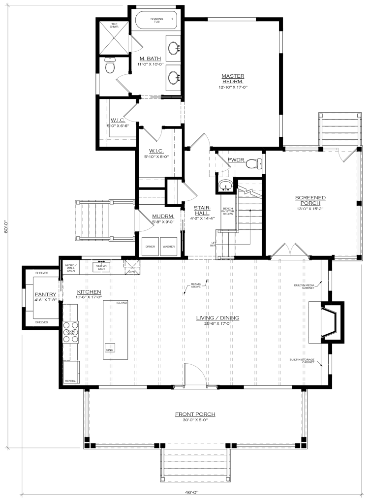
This is the House Plan CA-02-2026 house plan by LIVEWELL Home Design by Paul Harms. This plan is 2,026 square feet with 3 bedrooms and 2.5 bathrooms. The downstairs has a fabulous front porch and an open living/dining/kitchen (wow!) – complete with a stunning pantry (who doesn’t need this?)
Towards the back of the house is a stairwell, with a FABULOUS screened porch located off to the right as well as a powder room. There is a side entrance with a mud room, and towards the back is the master suite with two (yes! two!) walk in closets.
LOVE!
Upstairs there is a bedroom in the front and one in the back with a nice bathroom situated between the two. There is ample attic storage the front and back sections. Take a minute to look over this plan – it’s pretty sweet isn’t it?
LiveWell Home Design
Website | Facebook | This Plan
👩💻 Until next time…



Love this so much!
LikeLiked by 1 person
I’m serious! Everything so well thought out. Love the two closets, the pantry, screened porch and on and on 🙌
LikeLike
Pingback: House Plan CA-02-2026 by LIVEWELL Home Design! – Pro Calendar
Pingback: LiveWell Home Design – Pro Calendar