I love the lines of this house! It reminds me of some of the Tudor style homes in the neighborhood. I love the high pitch, the dormers, the quaint arch around the entrance – this is STUNNING. The mix of board and batten, shingles and stone really makes this house look like it’s been in the neighborhood for a long, long time. The two small windows on either side of the door adds so much charm. #likeafairytale
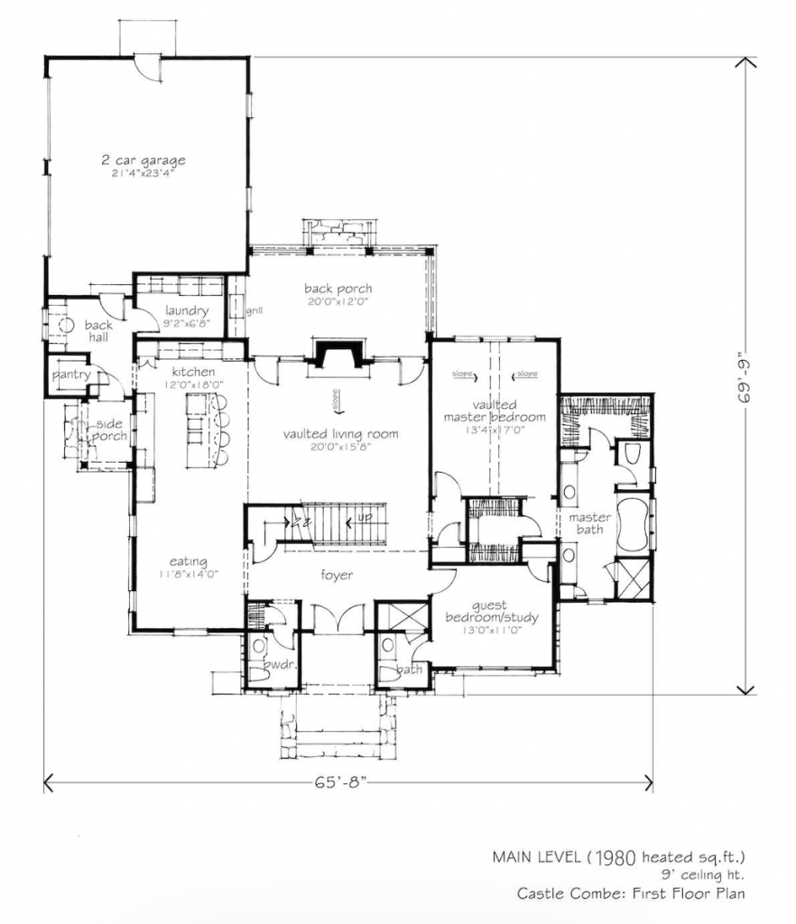
This is the Castle Combe house plan by Mitchell Ginn & Associates. This plan is 2,555+ square feet and has 4+ bedrooms and 4.5 bathrooms. There is also a basement plan (not pictured) that adds considerable space. It’s so nice to have options for exactly what you want. See the notations on square footage on each image.
The upstairs has 2-3 additional bedrooms with two shared baths and is open to the living room below. The master bedroom (below) is also vaulted which is a nice touch. Bedroom #4 is optional and can be used for a myriad of things if an additional bedroom isn’t necessary. This plan offers so much!
L. Mitchell Ginn & Assoc
Website | Facebook | Instagram | This plan
š©āš» I work with architects/designers from all over, so if you’re interested in one of their plans, please let them know that you saw their house plan here on artfoodhome.com!


