Plan W33161ZR from Architectural Designs! Wow, is this a wonderful old world Florida plan! This is a net zero plan with an L-shaped lanai. For those of you wondering what a lanai is, it’s basically a covered porch, which helps keep out the elements, and in sunny climates helps keep the house cooler by reducing the amount of direct sun streaming through the windows. Lanai’s are coveted spaces used for entertaining, relaxing, just like another living space, but outdoors. The back of this plan is FABULOUS, I urge you to check it out (click on the link above to see more photos and details).
You enter the house from a nice entry porch, then walk into the Great Room and Kitchen areas. Nice open wonderful areas with plenty of room! Down a hallway you will pass two Guest rooms, each with their own Guest Bath, then at the end of the house is the Master Bedroom/Bathroom. On the way to the garage is a Powder Room, Utility Room and Storage (YES!!). The stairs for the Guest Room are located near the garage, which is so nice!
Did you notice the built in dressers in the Master Closet? What a nice touch! As is the WALK-IN PANTRY! ❤️
Changes we would make to suite our needs: I would change Guest Bedroom 1 into a reading room, study or equivalent. If possible I would make Guest Bath 1 into the Utility Room with washer/dryer. I would take the Utility Room near the Garage, and make that a nice mud room with storage, or expand the Storage space (I love that they include a place for storage – it’s something we all need!) – It’s fun to think of changes I would make… of course I could easily live in it just as it is.
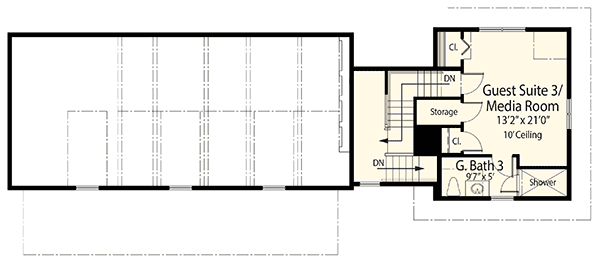
Can I say… I love a Guest Suite?!! What a great space. It’s a large space, with closets, storage, a Guest Bath, what more could you ask for? Also nice as an office or studio!
All images via ArchitecturalDesigns.com, used with permission…
IMAGES ARE NOT FOR CONSTRUCTION OR REPRODUCTION, THEY ARE PROPERTY OF THE ARCHITECTURAL FIRM.
Catch you back here tomorrow!


