American Farmhouse by Mitch Ginn and AssociatesThis is the American Farmhouse house plan by Mitch Ginn & Associates – this plan is 2,718 square feet, with 4 bedrooms and 3.5 bathrooms. It is a plan designed to look like a farmhouse from days gone by, but updated to include everything we love (including STORAGE!) – Click on the house plan name above (in orange) for more details! #charm #modernamenties #woohoo
The porches on this home are amazing, including both a wrap around front porch and a very nice size back porch.
This plan has the master suite located downstairs, which I happen to love. It has an unbelievable walk in closet and storage galore! The master bath is perfection – The kitchen is open to the dining which is open to the living area. The flow of this home is fabulous. I love a pantry off the kitchen, as well as a powder room near the back door (via garage) – the laundry is also tucked in that same area. What’s not to love about this?
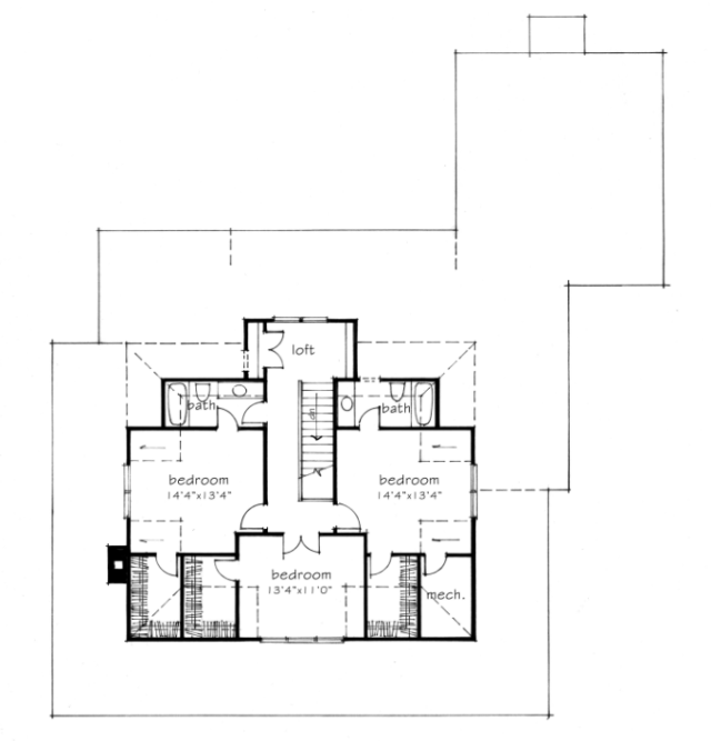
The upstairs has three bedrooms, two bathrooms and a loft space which is perfect for another getaway space! Do you see what I see? CLOSETS! I can tell you from someone who lives in a home built in the 1930’s that closet space is precious. This plan has a dreamy amount!
L. Mitchell Ginn & Assoc. | Traditional Residential Design
Website | Facebook | Instagram
Read a bit about Mitch Ginn and Associates:
L. Mitchell Ginn and Associates, Inc. is a residential design firm specializing in custom, traditional American and European home design. Mitch began his professional design work in 1985 after having worked for W.L. Corley of East Point, Georgia.
The 2006 Southern Living Idea House was constructed on Daniel Island in Charleston, South Carolina.
Atlanta’s Southern Crescent of Coweta, Troup, Fayette, and Henry Counties makes up the majority of the firm’s custom work. However, vacation homes located along many Southeastern beach and lake shorelines have been designed by the company as well. L. Mitchell Ginn and Assoc. complete between 150 to 200 projects a year.
In 2003, the company began producing stock plans in addition to their custom plan projects. Many of these stock plans have been featured through the years in Southern Living Magazine and Southern Living House Plans Magazine.
The company has designed several “Street of Dreams” homes in the Atlanta area throughout the years, and also designed the 2006 Southern Living “Idea House” in Charleston, South Carolina.
Catch you back here tomorrow!


Love this plan!
LikeLiked by 1 person
Love the exterior but the flow between the living room and the master bedroom is awful. Long walk through the dining room. kitchen and back hall. A door in the living room would solve the problem.
LikeLike
Joe, house plans, like art have some who love what others do not. I happen to like the flow as it is and would not prefer a door off the living room into the master bedroom room. It’s all relative and thank goodness we all like what we (personally) like, otherwise life would be so boring! If it was a priority for me to access my bedroom quickly and if I didn’t mind giving up privacy then a door as you mentioned would be an option.
LikeLike