
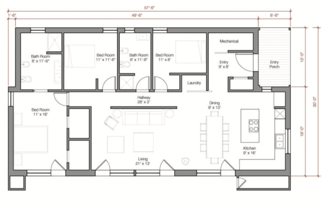
This is the GO Home 1700 by GO Logic. This plan is 1,691 square feet with 3 bedrooms and 2 bathrooms. This house plan includes a covered entry porch which is always nice to get out of the weather, as well as a laundry space and an outside storage space. There is also a deck and a screen porch (LOVE!)! You also have the option for a garage, which is always handy!
This is a great plan for those who want to be a part of their surroundings. While this plan can be nice in any setting, I think I would enjoy it most if it was located on the water or in the woods (or somewhere with a little privacy/a view).

Let’s take a look at the plan itself. The entry porch brings you to an entry space and then into the kitchen/dining area, which back in the day I have heard people say they would never want to enter. You might see a dirty dish! But, times have changed. Kitchens that are built now are the heart of the home and not just a place to prepare a meal. They are not utilitarian in nature, but one of the nicest rooms in the home (so what better room to enter into!?) Kitchens are a room to gather, to be part of with friends and family – and kitchens are beautiful! Appliances are like jewelry (or they can be) – there are some STUNNING appliances out there… I think this is a fabulous plan and wouldn’t hesitate for a second to build it.
I like the open kitchen, dining, living space, with a dedicated hallway that gives a little separation AND it also gives you a wall to anchor furniture (AND PAINTINGS!)
The master bedroom has a nice bathroom and two closets. There are two additional bedrooms that share a bathroom, as well as a laundry space and mechanical space.
If you aren’t familiar with how GO Logic builds their homes, please read on. It’s amazing. There is a reason they’ve won awards. These plans are not only beautiful but are build to high standards to be passive and not use a lot of energy… It’s fascinating! See more images of this plan via the the house plan link in the first paragraph! Wow!
See other GO Home plans HERE!
GO LOGIC
Website | Facebook | Their Story
Catch you back here tomorrow!
All images via thegohome.us, used with permission…
Images are not for construction or reproduction, they are property of the design firm.
Love this house! So wanted to build this in Port Clyde!
LikeLike
It’s got everything 😉🤓
LikeLike