
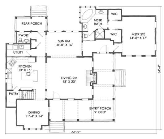
Ooh ooh ooh! Love these plans! This is TNH-LC-10A (LC = large cottage) by Moser Design Group. This plan is 2,457 square feet with 3 bedrooms and 2.5 bathrooms. 10′ ceilings on the first floor, 9′ on second. I love that the master bedroom is that sweet little separate space on the right. Fabulous isn’t it? What a dream to have a front porch that wraps to the side – so nice!

This is a great plan for so many reasons. First of all you have a separate dining room for those of you who really use a dining room. I think I would make it a reading room, and put some really nice barstools at the bar area in the kitchen… or maybe I would use the dining room? Hmmm… Possibilities! The Kitchen and Living spaces are together which is so nice! THERE IS A PANTRY! Five stars for that alone! A rear porch, which I love, a powder room right off the porch, which is handy when you’re working in the yard! A sunroom! Which is heavenly! Ok, I’m ready to move! Hee.

The upstairs has two bedrooms with a shared bath as well as attic/storage or playroom space. Art Studio?? Whoa Nellie!
All images via MoserDesignGroup.com, used with permission…
Catch you back here tomorrow!
awesome plan!
LikeLiked by 1 person