Can you imagine this gorgeous home (especially if you were situated on the water or any other heavenly place with a view!) – This house packs so much punch for its square footage. Don’t get me wrong, it isn’t small (matter of fact, to us, it’s large, we live in a smaller older home). I love the lines of this house, the porches, windows, etc. How dreamy to have a fireplace (indoor/outdoor) outside! To me, that would be the ultimate.
This is the Longleaf Cottage plan by Lake & Land Studio. This plan is 2,781 square feet with 3 bedrooms, 4.5 bathrooms as well as a loft bunk space! I know! Let’s take a look at the main floor plan:
Aside from the wonderful porches, screen porch, entry porch – this plan is also fabulous on the interior.
Entering from the large screen porch that wraps to the side (complete with fireplace!!) you walk into the great room. The stairway will be on your left and an office space will also be on your left.
As you walk through the great room you’ll see the dining area on your right and kitchen on your left (love the kitchen sink in the island so you can see what’s going on!). Note the wonderful walk-in pantry!
Continue on to the gallery hall, take a left and there is a half bath and a nice size laundry room right past it. On the right side of the gallery hall is the master suite with two closets as you first walk in. So nice and so much storage, which is appreciated! You can then exit the home via the door and have onto wonderful porch area!
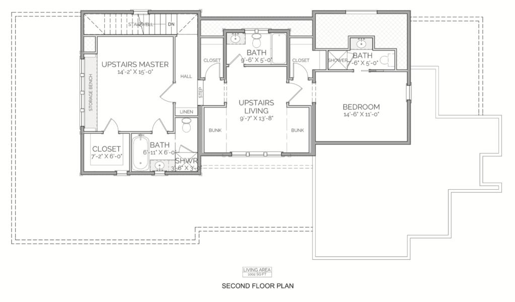
The second floor has the upstairs master suite, another bedroom/bathroom, a living space with a full bath and two bunk spaces in the loft. So fun for kids!
Lake and Land Studio
Website | Facebook | Instagram | This Plan
🏠 I work with architects/designers from all over, so if you’re interested in one of their plans, please let them know that you saw it here on artfoodhome.com!
Until next time…



