
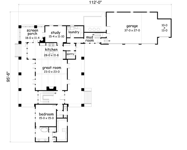
For those of you who enjoy a bit more space, I ran across this house plan from Southern Living House Plans. It’s the River House (SL-1829) and was created by the architects at Group 3 Design from the Hilton Head, SC area. This house plan is approximately 3086 square feet, has 2 bedrooms and 3.5 bathrooms. It also boasts quite the garage for those of you who have a boat or an extra vehicle!
I love how the master bedroom is off to itself at the end of the house, then the fabulous open great room and kitchen. What a dream! A nice study tucked away for quiet reading or for working as well as a screened porch.
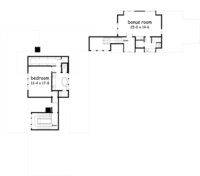
The bonus room would work well for us for storage, the treadmill, and if I would pick up a paint brush, could be a nice painting spot! So many possibilities! I think I would opt to have a half bath in the bonus room.
How would this plan work for you? What is it you like to see in a house plan? Modern, traditional, coastal, two story, one story, master up or down? So many options! Let me know and that can help me target future house plans!
Catch you back here tomorrow!
ALL IMAGES VIA houseplans.southernliving.com
F L A S H B A C K !
O n e Y e a r A g o: Colin Page!
T w o Y e a r s A g o: On a Limb Show…
T h r e e Y e a r s A g o: Henri Matisse Quote
Catch you back here tomorrow!

