
Design of this signature plan is by David Wright
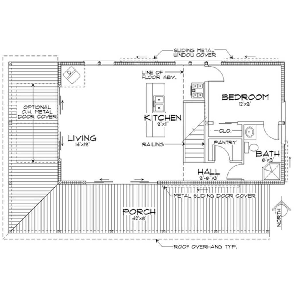
Cabin plan 452-3. This signature plan, designed by David Wright for Houseplans.com packs a powerful punch. It’s not a large cabin but it has presence! Who doesn’t love a wonderful porch like this plan has? This plan has 1,015 square feet with 2 bedrooms and 1.5 bathrooms. Just. Right.

Houseplans.com
When you click on the link that takes you to the plan it shows many photos, you’ll see notes on the plan that say “Metal Sliding Door Cover” oh yeah, that is too cool. You’ll see another that says “Sliding Metal Window Cover” – awesome! Perfect if you’re using this space as a cabin, OR great for storms, etc. There is a lot of living space to be had outside if your climate is right! It’s nice that there is even a pantry!

The upstairs has a loft bedroom with a bathroom and closet area. It’s open to the living area below. Are you looking for a cottage style plan? What do you think?
All images via Houseplans.com… used with permission.
Catch you back here tomorrow!
Really like the 452-3 plan, but where is the laundry?
LikeLike
Looks like this is a cabin plan, more of a getaway vs. a year round home. However, I wouldn’t think it would be too difficult to add a laundry area if you love this plan. It’s fabulous!
LikeLike