
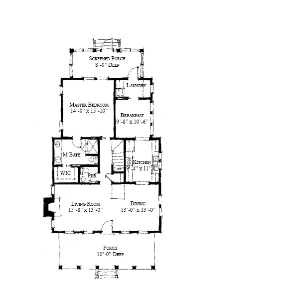
The Augusta Avenue house plan (C0525) by Allison Ramsey Architects is 1682 square feet with 4 bedrooms and 3 bathrooms. It’s a great plan that fits a lot in not a lot of square footage. I really like that! The lines on this house have character – a definite must!

What is more welcoming than a nice deep porch? Lovely! I like the master tucked away in the back, with a laundry room nearby, and also near the back of the house. A breakfast area that could easily be made into a reading area if you prefer just one eating area. Options… love em!

A great upstairs with a window in the loft area. For us, we would stick with with just three bedrooms, that’s plenty! Nice that there is a shared loft space and bathroom upstairs. If you needed extra studio space, say, for an art studio, the optional bedroom four would be quite nice, wouldn’t it?
All images via AllisonRamseyArchitect.com, used with permission…
Catch you back here tomorrow!
The front facade of this house looks like many here on the Eastern Shore of Maryland. There are several just like it right here on my street. The use of interior space is much better, however….I could see that back upstairs room as a great studio particularly if it had North light.
LikeLike
I agree Kirk! That back upstairs room would make a great studio space! It’s so interesting to hear that there are home like this one in your area… The interior (more open space) is a trend I really like! Although as someone pointed out to us, less walls = less paintings… EEK! ;)
LikeLike
love the pitch of the roof!
LikeLike
Me too! Makes this house happenin’!
LikeLike