Martin House plan (SL-1863) by architect Bill Ingram for Southern Living House Plans. This plan is 2,990 square feet with 3 bedrooms and 2.5 bathrooms. I really like that the garage doesn’t look like a garage! Also note the wonderful porches on front and back! This plan is more traditional than the open plans I have been featuring. There are so many different styles to love, and this is surely one!
Can the exterior be any classier? I don’t think so… I love it!

As I mentioned, instead of the open living, dining, kitchen space, you have more individual rooms, which is also quite nice. I like how the master is tucked away, and the library not far from the master… love it!

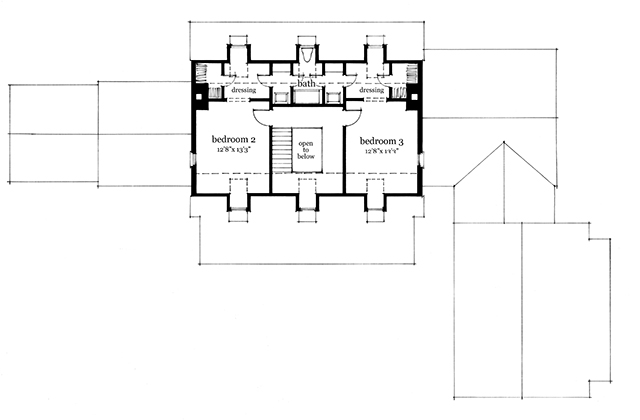
The upstairs has two bedrooms with a shared bath and private dressing rooms. How decadent!
Images via Houseplans.southernliving.com
Catch you back here tomorrow!
