This is the 200 Madison Street house plan by Our Town Plans, and it’s a beauty! This plan is roughly 1,719 square feet with 2 bedrooms and 2.5 bathrooms. Don’t you just love the wrap around porch? The lines of this plan are so nice. I would have a table and a few comfy chairs on the front porch. On the table I would have a lamp that gives off nice warm light. I think that makes a house look so warm and inviting.
When you come up the front steps onto the porch of this plan, you enter into the living rom. The Living, Dining and Kitchen are open and share a wonderful space. There are French doors off of the Dining room giving you the option to screen part of the porch so that bugs don’t get in or leave it unscreened for parties, keeping doors open, there is quite a bit of real estate on those wonderful porches!
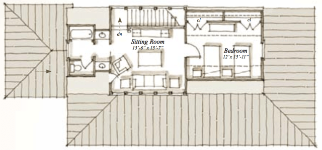
The upstairs is kept nice and simple. A great Bedroom, Sitting room and Bathroom. What a luxury to have another Sitting room! This is one classy plan!
Our Town Plans has wonderful house plans, large home, small home, outbuilding, you name it!
All images via OurTownPlans.com, used with permission…
Images are not for construction or reproduction, they are property of the architectural firm.
Catch you back here tomorrow!



This is such an efficient plan! For those who need more beds, there’s also a version that has a bedroom, sitting room, bathroom, and bunk room upstairs.
LikeLike
I love all the options that you offer! It’s beautiful and a plan that can be lived in for years to come!
LikeLike