This is the Pemberton house plan by Karoleena. This plan is 1,300 square feet with 3 bedrooms and 2 bathrooms. This is a stunning modern take on farmhouse living. The impressive number of windows brings the outside in no matter where you are! Classy design, as always, by Karoleena.
Click to see larger image, or see MAIN living area detail in next image.
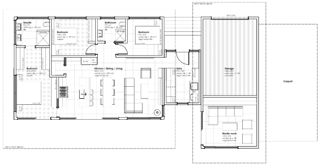
This house plan has the master bedroom/bathroom located on far left with wonderful closet space. Across the front you’ll see the Kitchen/Dining/Living, so well thought out. Located behind the main living space is another Bedroom, Bathroom and and another Bedroom on the far right. Joining the main home to the Garage and to the separate Media Room is an Entry space, which is where the washer and dryer are located. Very smart indeed! The Media room, the way it juts out a bit adds such interest to this plan. Making it a hideaway that is nearby and enjoys the scenic view, just like the rest of this fine home.
Here is the detail of the main living area. I can imagine myself living here… in a heartbeat!
Be sure to check out their website: “Karoleena is a custom home builder specializing in designer prefab homes. Our modern homes are built in beautiful British Columbia and delivered anywhere.” Not familiar with their manufacturing process? Be sure to check it out, it’s very impressive!
All images via Karoleena.com, used with permission…
Images are not for construction or reproduction, they are property of the architectural firm.
Catch you back here tomorrow!



Karoleena has the best plans!
LikeLiked by 1 person
Love them!!
LikeLike