This is the Thaxton Residence house plan by Lake and Land Studio. This plan is approximately 1,860 square feet with 3 bedrooms and 2.5 bathrooms. What a great plan if you live on the water! Wonderful porches as well as a fireplace both indoors and out! This is one sharp plan, I love the lines of it!
The main floor has an open Kitchen/Living area with access to both porches. There is a nice Master Bedroom/Bath, Laundry area as well – making it private with all other bedrooms located upstairs.
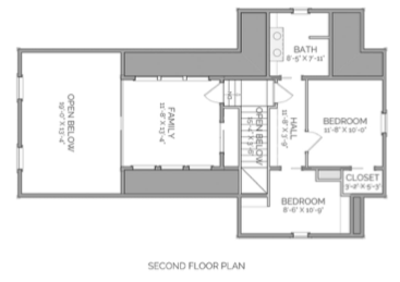
Not only are there two Bedrooms and a Bathroom upstairs, but also a Family Room – the addition of another place to hang out is such an added bonus! Check out more plans by Lake and Land Studio, both residence plans and retreats!
Catch you back here tomorrow!

