
Wow, right? I love the house, the garage AND the covered breezeway leading to both the house and the upstairs guest suite from the house. A wonderful place to live or be a guest! I like this modern farmhouse plan a lot. You can see some of the real-life images – which really helps when trying to think about how you would live in a plan…
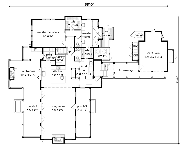
This is the Islander Cottage Plan by Moser Design Group for Southern Living House Plans. This plan is 3,273 square feet with 4 bedrooms and 4.5 bathrooms. There are roomy porches (as well as a screened sleeping porch upstairs) – not to mention a guest suite (4th bedroom) that is so private your guests will never want to leave!
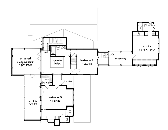
The back of this home is out of this world (click the “Cottage Plan” link above or below to see the images) – many doors, windows a sleeping porch that is screened, and would be heavenly, especially on a cooler night or any time the humidity dips low! You’ll also see an image of the guest suite over the garage – Wow! Now lets take a peek of the interior…
There is a lot of living both inside and out. Look at all the french doors which lets the light in! What a wonderful plan if you love to entertain! With this plan, you walk onto the front porch into the living room. Once inside it’s an open living/kitchen space. And… what a kitchen! Prep space, a pantry, and exquisite island. The master suite is on the far right of this plan. Love the outdoor shower!
The upstairs of this plan is pretty special. It has three bedrooms (one in a suite by itself over the garage – accessed via the breezeway!) Each bedroom has a private bathroom. There is also attic space and the treasure to me… the screened sleeping porch!!! What a dream!
Moser Design Group
Website | Facebook | Instagram | Islander Cottage Plan (SL)
✍️ Until next time…
All images via MoserDesignGroup.com, used with permission…
Images also from: houseplans.southernliving.com

