Makes a statement, right? I LOVE a black house – the shape, and design of this particular plan lends itself well to a black (or other very dark) exterior. It’s stunning. Very cool lines, and check out GO LOGIC’s image from winter – whoa! (Click to see the PDF via the link below).
This is the 1800 Model GO HOME by GO Logic – this plan is 1,811 square feet with 3 bedrooms and 2.5 bathrooms. The way this home is pictured in the image – you enter from the side into a nice size entry space.
From the entry space, you walk into an open kitchen, dining, living, powder room and to downstairs bedroom/bathroom. One thing I know I will get comments on… where are the closets? If you look there is space for a built in area – or for us, we would use one of the bedrooms as a closet. Having everything stored in one place helps keep the aesthetics of the home neater – easier on the eye.
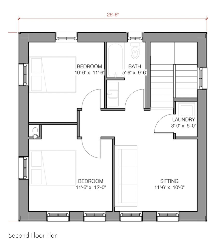
At the top of the stairs is the laundry area, off the wonderful sitting room – perfect for those who live upstairs, or as an office/studio/exercise area for those who are empty nesters. The two bedrooms have a shared bath. Perfect!
GO LOGIC
Website | Facebook | Instagram | This Plan
👩💻 Until next time…


