What a great livable plan, especially for a retreat! The back porch is stunning and where I would be most of my spare time. The front is equally as sweet with a nice porch and inviting design. This is a great plan if you are on water, in the woods or in any beautiful setting where you can take advantage of the views.
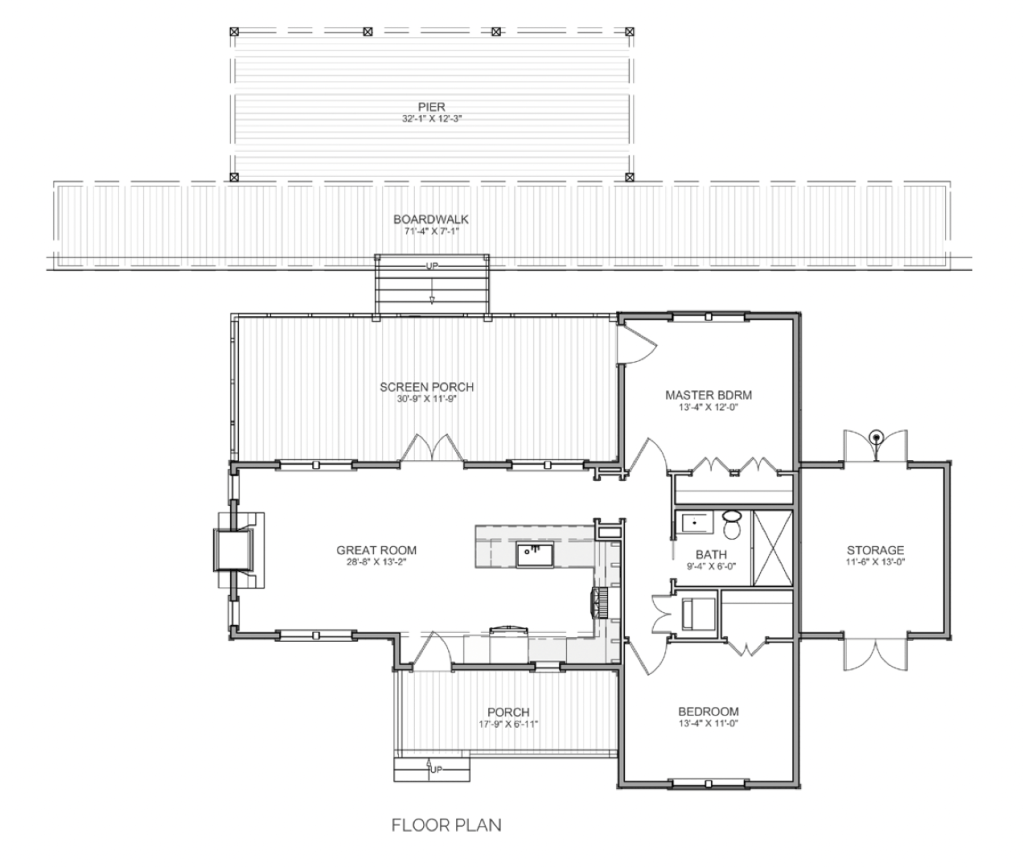
This is the Raleigh Retreat house plan by Lake and Land Studio. This plan is 1,016 square feet with 2 bedrooms and 1 bathroom. And what a plan it is!
The pier off the boardwalk on the back of the house, in addition to the two porches (one large screened porch!) makes this an ideal home or retreat! The interior is equally as wonderful as it uses every little spot so that you can live well in a smaller space. From the front porch, you walk into the great room/kitchen area, which opens to the stunning screened porch (accessible from the master bedroom). Both bedrooms are located the right side of the house, one in the front, one in the back separated by a shared bathroom. I think if this were to be my home (vs. retreat), I would expand the outdoor storage area, open it up to the master bedroom and have it be closet/bathroom.
Lake and Land Studio
Website | Facebook | Instagram | This Plan
👩💻 Until next time…


