
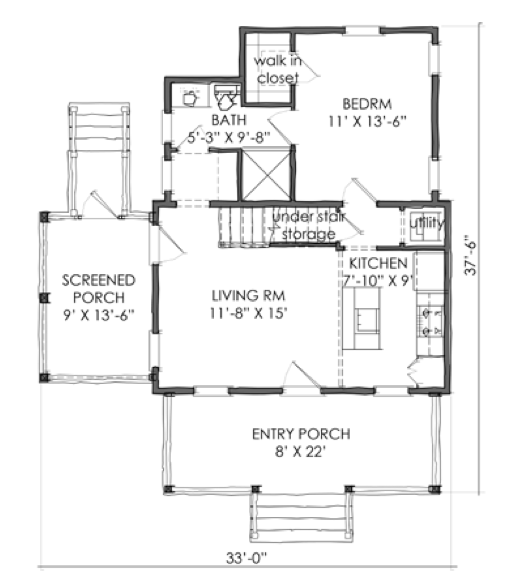
TNH PC 09A with 958 square feet and 2 bedrooms/2 bathrooms… Are you looking for a relatively small house plan with great features? Look no further! This sweet plan, designed by Moser Design Group is a classy plan that really has all you need! There is nothing like a porch. This plan has a front porch and a screened side porch (which could always be filled with windows and made into a sunroom/studio/spare room). I love our sunroom. There is nothing like it for reading…

This plan does not have one thing… a dining room. Thank you for that. For us that is wasted space. We use ours, but only because the room would otherwise get no use at all. Having counter space at the island or a small antique pine table would be perfect! The only thing that I’m not big on with this plan is no powder room for guests. There is a cut through area to the master bathroom, but I would see what I could do to maybe push that wall out a wee bit to fit a washer/dryer in that space and a powder room where the utility currently is (teeny powder room) or maybe under the stairs)?? This plan allows you to choose if you would like the master up or down. Very nice!

The upstairs plan is fabulous with just one bedroom, a closet and a bathroom… The three windows on the front really make this plan shine!
What would you do? I always love to hear!
All images via MoserDesignGroup.com – used with permission…
Catch you back here tomorrow!
Love the house!
LikeLiked by 1 person