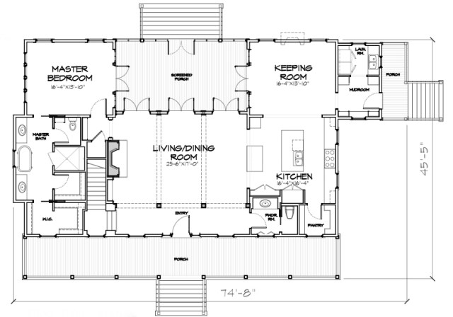
This is the 248 Abbeville Rd plan from Our Town Plans – it’s gorgeous isn’t it? This plan is 3,538 square feet with 4 bedrooms and 4.5 bathrooms. This plan is as wonderful on the inside as it is on the outside! I could see myself spending a lot of time on this porch!
This plan is so fabulous, wonderful if you entertain, or if you have a large family. Off the Kitchen you may notice a Keeping Room – which is like the gathering place near the Kitchen, which is where everyone always ends up. So smart that some plans now include space for extra people to gather and hang out! While the Kitchen and Keeping Room right off the Living/Dining area. You can be in any area and communicate and feel like part of the action. The Kitchen also has a PANTRY! Which I absolutely love! The Laundry Room is near the side porch, next to a Mud Room. WONDERFUL! On the other side of the house is the downstairs Master Bedroom and Bath.
And the porches… ahhhh! Lovely!
More Bedrooms and Bathrooms upstairs. Like I said, wonderful for a large family or for guests! I like that there is also a sitting room upstairs!
All images via OurTownPlans.com, used with permission…
IMAGES ARE NOT FOR CONSTRUCTION OR REPRODUCTION, THEY ARE PROPERTY OF THE ARCHITECTURAL FIRM.


