May Isle Cottage by John Tee
This is the May Isle Cottage by John Tee – this plan is 2,100 square feet with 3 bedrooms and 3.5 bathrooms. Isn’t this a sweet plan? I love the cuts in the roof – beautiful!
May Isle Cottage by John Tee
I like the layout of the first floor. It’s nice when you’re in the Living Room to have a bit of privacy from people who come knocking at the door (well, other than friends or neighbors!) – having the stairway in the front does help with that. This plan has a Master Bedroom downstairs and has a powder room near the Foyer. The Living, Kitchen and Dining are open which is fabulous – I see something else I love… a PANTRY, with a washer and dryer! Tuck it out of the way! Add to this an Outdoor room and you have one heck of a house!
May Isle Cottage by John Tee
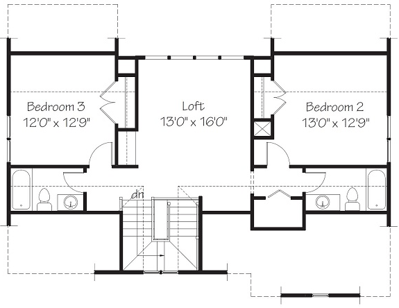
Upstairs there are two Bedrooms, each with their own bathroom, as well as a Loft space. The Loft is a great space that can be used for so many things!
All images via Store.JohnTee.com, used with permission…
Images are not for construction or reproduction, they are property of the architectural firm.
Catch you back here tomorrow!


