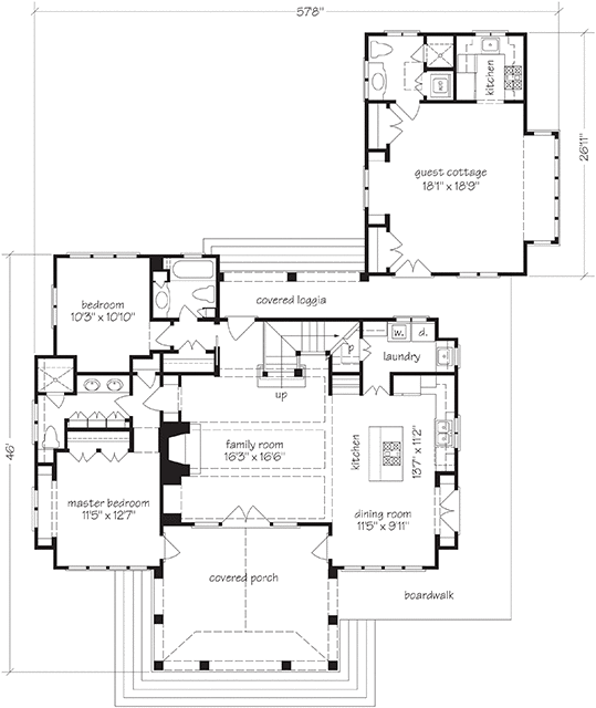
This is the Capeside Cottage SL374 by Spitzmiller and Norris, offered by Southern Living House Plans. This plan is 1,735 square feet (not including the optional 525 square foot guest cottage as pictured above). The guest cottage is adorable! What a bonus to have a private guest room! This plan also has a wonderful porch, sharp lines, and oodles of character!
The main floor is open with a family room, kitchen, dining room – I would see if there is any way to fit a stackable washer/dryer in the master bath to free up the laundry area for a pantry. However, a laundry area sure would be nice, especially with that sink! Read more about these features on Southern Living’s website!
The upstairs has a wonderful loft area, a bedroom and bathroom. Perfect!
All images via Houseplans.SouthernLiving.com, used with permission from Spitzmiller & Norris…
Images are not for construction or reproduction, they are property of the design firm.
Catch you back here tomorrow!


