
This is the Windsor Farmhouse plan by Yankee Barn Homes. It’s got a classic New England look, and their photo (above) in the snow… Beautiful! See many wonderful photos from this link! You can also download the Windsor house plan packet HERE to see more! This plan is 3,186 square feet with 2-3 bedrooms and 2.5 bathrooms.
It’s nice that Yankee Barn Homes have planned ahead in case a downstairs bedroom is needed. The Library can easily be made into a bedroom, especially with its close proximity to a bathroom/shower. The kitchen is open to the dining room which I personally would make more like a dining/sitting area – a casual space that would be the heart of the home for those who aren’t cooking. I know the trend is an open living/dining/kitchen, but I still like rooms closed off. I like both options. This house plan offers both. Very nice to have a mudroom, it’s useful space for sure!
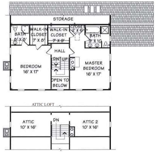
The upstairs has two bedrooms, two bathrooms and plenty of closet space! There is also an attic loft with additional storage space. Whoa!
Yankee Barn Homes builds some beautiful homes and if you aren’t aware of their building process check it out! They’ve got things figured out!
Yankee Barn Homes
Website | Facebook | Instagram | Blog | History
Catch you back here tomorrow!
All images via YankeeBarnHomes.com, used with permission…
Images are not for construction or reproduction, they are property of the design firm.

