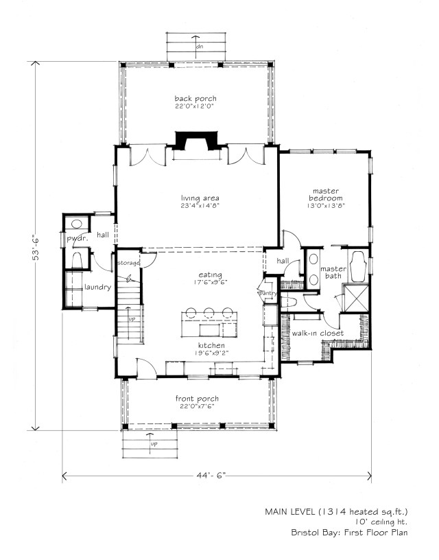
Isn’t this a fabulous house plan that will fit well in many established neighborhoods – which I love! A sweet front porch coupled with a roomy back porch is a dream! This is an open plan with the master down and three bedrooms upstairs!
This is the Bristol Bay Cottage plan by Mitch Ginn & Associates. It’s a beauty isn’t it? This plan is 2,130 square feet with 4 bedrooms and 3.5 bathrooms. As you’ll see this plan is perfectly designed. I would love to move right in!
This plan has such a welcoming porch and I absolutely love that the kitchen is located as you walk in the door. I am in the kitchen a good bit of time, and it’s nice to be able to see outside – see what’s going on while you’re cooking, cleaning, etc.
A (partial) description of this plan on mitchginn.com is:
Bristol Bay Cottage is reminiscent of the wonderful homes found in any New England village.
I love this description, and it’s so true, this plan IS reminiscent of the homes in a New England village. Which just adds to the appeal!
You enter this plan from the fabulous front porch, you walk into the kitchen (LOVE!) The two windows in the kitchen plus the window on the side of the house (near the stairway) allows nice light. In the heat of the (now Spring) and Summer, the porches help protect from the direct blaring light that can warm things up quickly. From the kitchen is a nice island and eat in area and then the living area. This is all completely open, so you can see from the kitchen to the living area. The living space has a nice fireplace flanked by two sets of French doors. Screen the back porch and you can open those doors bug-free!
Off the living area is a hallway that leads to a powder room and a laundry room. Did you notice? Storage underneath the stairway. Space is precious, and it isn’t wasted on this plan!
I like that the master suite is down. Bedroom, bathroom, large walk-in closet – what’s not to love?
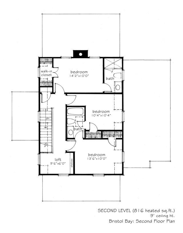
Upstairs is another bedroom with bathroom and large closet, as well as two additional bedrooms that share a bath. A brilliant idea is the loft space with shelves, perfect for studying, writing, reading, working, two great windows in that space.
Each plan that I feature I truly picture myself living in. How would I live? What would I change (if anything)? This is fabulous!
L. Mitchell Ginn & Assoc.
Website | Facebook | Instagram | House Plan
Catch you back here tomorrow!



Nice plan!
LikeLike