
This is the 1400 GO Home House Plan by GO Logic! This plan is 1,430 square feet with 3 bedrooms and 1.5 bathrooms. For those of you unfamiliar with GO Logic, I highly encourage you to check out their website and read about the types of homes they build. This is a company thinking about the future in terms of options for Net Zero, and other brilliant ideas to create energy efficient masterpieces! Beautiful design, thoughtful and balanced. Truly, you’ve got to read more about this company! Be sure to check out the GO Homes!

Great plan, isn’t it? The downstairs consists of a kitchen, dining, living space as well as a powder room. The kitchen has a fabulous pantry (woohoo!) and a nice entryway to give you space for all the comings and goings that life throws your way. To see more images of this plan, click HERE…

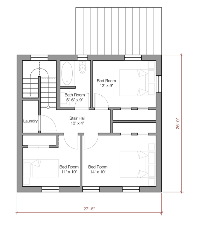
Upstairs you will find three bedrooms, a bathroom, and laundry space. You could opt to use one of the bedrooms for an office space or studio – how nice! Fabulous plan, isn’t it?
GO Home by GO Logic
Website | Facebook | Instagram | GO Logic
🌀Until next time…
All images via TheGOHome.us, used with permission…
Images are not for construction or reproduction, they are property of the design firm.

Love their house plans! If we were to move to Maine, go logic is the way to go!
LikeLiked by 1 person
Agree!
LikeLike