
It comes as no surprise what a hit house plans are. Y’all love them! It’s always fun to imagine a new space, how it would work for you, what you like, what you wish could be a little different. The wonderful people at Lake & Land Studio will work with you to make your dream a reality. They are available to make changes to plans, which is so exciting. It doesn’t mean these plans NEED a change, it’s all about what you like and what is important to you. It’s always good to know that you have options!
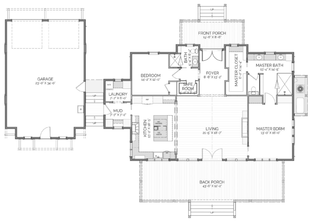
This is the Sunflower Residence house plan designed by Lake and Land Studio. This plan is 1,714 square feet with 2 bedrooms and 2 bathrooms. It’s got a sharp look, very happening – a home with charm!

The Sunflower Residence plan is a one story plan with a vaulted living space, fireplace, large island in the kitchen – a nice open design without being too open. Notice the grand foyer? Nice! The owners suite is located on one side and the guest room is located on the other. Do you notice a super cool feature??
A SAFE ROOM. I happen to love that Lake and Land has been incorporating Safe Rooms into some of their plans. What a huge peace of mind to know that you have a room that is the safest in the house to go during a tornado, hurricane, etc.! Hattiesburg, MS (home of Lake and Land Studio) has seen their share of tornados. They are devastating! What a god send to have a location to shelter in place! #priceless
This is a great plan with a spacious back porch, perfect for entertaining – it’s a deep porch, and let me tell you, it would be hard to pull me away from it!
Lake and Land Studio
Website | Facebook | Instagram | Plan Description
✍️ Until next time…