Doesn’t this house have a grand feel to it? The painted brick looks like it was built many, many years ago – yet freshened up and raring to go. This is a possibility for infill in an existing older neighborhood with similar style homes. Not that homes have to be exact, but their size and scale matters – just so it blends nicely with the existing homes.
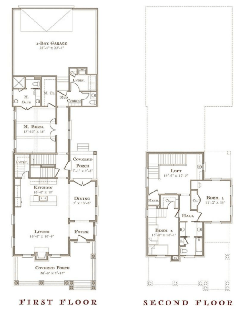
This is the Piedmont house plan by C3 Studios for Southern Living (SL-2087). This plan is 2,313 square feet with 3 bedrooms and 3 bathrooms (not to mention a 2 bay garage!)
You enter via a nice covered porch which really makes this plan. How nice to sit with friends on your porch and say hello to those passing by. The porch gives it such a neighborly feel. The living space in this plan is all up front, living, dining, kitchen – with master suite (back left) located downstairs.
Upstairs there are two more bedrooms with a shared bath and loft space, perfect if you have kids or work from home! C3 builds some beautiful homes – check them out via the links below!
C3 Studio!
Website | Facebook | Instagram | This Plan
🏠 I work with architects/designers from all over, so if you’re interested in one of their plans, please let them know that you saw it here on artfoodhome.com!
Until next time…

