Stunning plan. The exterior is exquisite. The shake roof is so beautiful. So many details make this plan one that will be around for generations. I usually try to feature homes that can fit into existing older neighborhoods so that the flow, rhythm and character remains. This is a beauty and could fit in nicely in many neighborhoods – let’s take a peek…
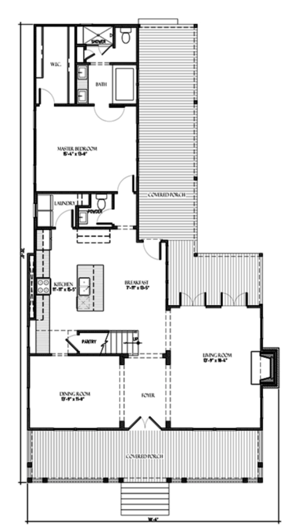
This is the Pendleton house plan by Lew Oliver for Southern Living. This plan is 2,329 square feet with 3 bedrooms and 3.5 bathrooms. The Pendleton plan has a lot of covered porch space which makes it extra special. I think for me, I would opt to screen the back porch off the living room so that the doors to the living room could remain open to catch a breeze on nice days.
The entrance to this home is via a lovely covered porch into a foyer with a stunning living room to your right (with fireplace). The back of the living room is flanked with French doors (two sets). What a wonderful visual as you enter.
From the foyer to the left is the dining area. If you walk back to the foyer and walk ahead you enter the kitchen/breakfast area complete with pantry. A great island and entrance to a covered porch from the back.
Behind the kitchen is the laundry and the master suite, which is tucked away and oh, so private. It’s like your own luxury retreat.
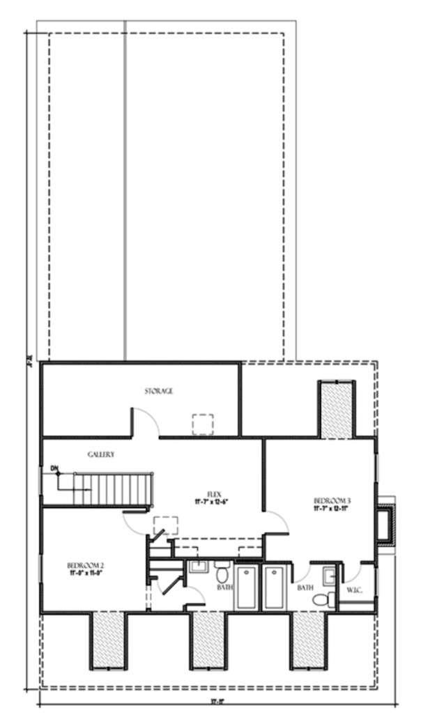
Upstairs you’ll find two bedrooms each with a private bathroom and nice size walk-in closet. There is also a flex space that can serve many purposes, but using it as a nice getaway to read or watch tv can be imagined. There is notably, storage space (we all love our storage space)!
Lew Oliver is known for his high end designs and this is no exception. Visit Lew Oliver’s links below to see his other work (wow!) as well as Southern Living’s website (and the link to this plan).
Lew Oliver
Website | Facebook | Instagram | This Plan
Southern Living
Website | Facebook | Instagram
🏠 I work with architects/designers from all over, so if you’re interested in one of their plans, please let them know that you saw it here on artfoodhome.com!
Until next time…



Love love love
LikeLiked by 1 person
and that roof – cedar shakes, my favorite!
LikeLiked by 1 person